


keyboard_arrow_rightkeyboard_arrow_left
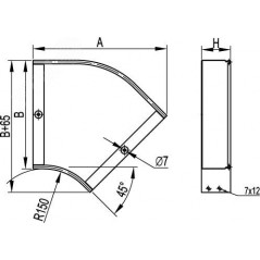
Система листовых лотков ''S5 Combitech'' предназначена для построения кабельных трасс, в т.ч. сложного конструктива. Входящие в состав системы повороты позволяют разворачивать трассу под определенным углом в желаемой плоскости. Горизонтальный угол 45 градусов СРО обеспечивает поворот трассы в горизонтальной плоскости под углом 45 градусов. В состав комплектного аксессуара входят детали, необходимые для качественного и надежного монтажа - соединительные пластины и крепежные элементы. Ширина - 500 мм, высота - 50 мм, толщина стали - 0.8 мм. Исполнение - ''Горячий цинк''. Это специальное исполнение, которое отличается повышенной устойчивостью к коррозии. Изделия с таким покрытием можно применять даже в условиях агрессивной среды, повышенной влажности, солевого тумана.
Характеристики
Особые артикулы
На данный момент нет отзывов от покупателей