
keyboard_arrow_rightkeyboard_arrow_left
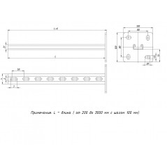
Подвесная стойка (I-профиль) с приваренной траверсой. Для крепления на горизонтальных бетонных перекрытиях и стальных конструкциях.
6361420
Характеристики
Особые артикулы
На данный момент нет отзывов от покупателей