


keyboard_arrow_rightkeyboard_arrow_left
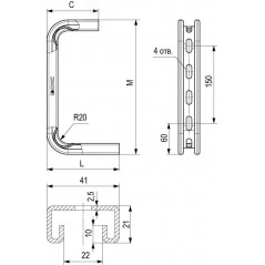
Легкая потолочная консоль ВВА-30 предназначена для монтажа трассы лотков с малой нагрузкой, крепления к потолку или стене. Толщина стали 2,5 мм. 2 отверстия в основании. Совместима с лотками шириной 200 мм. Противокоррозионное цинкнаполненное покрытие повышает срок службы изделия в условиях агрессивных сред и высокой влажности.
Характеристики
Особые артикулы
На данный момент нет отзывов от покупателей